Pläne - Doppelhaus in Traumlage

Doppelhaus in Traumlage
Menü
Direkt zum Seiteninhalt

Pläne

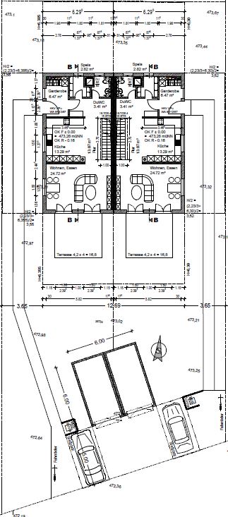
Grundriss des Erdgeschosses inkl. Terrasse
Grundriss des Obergeschosses
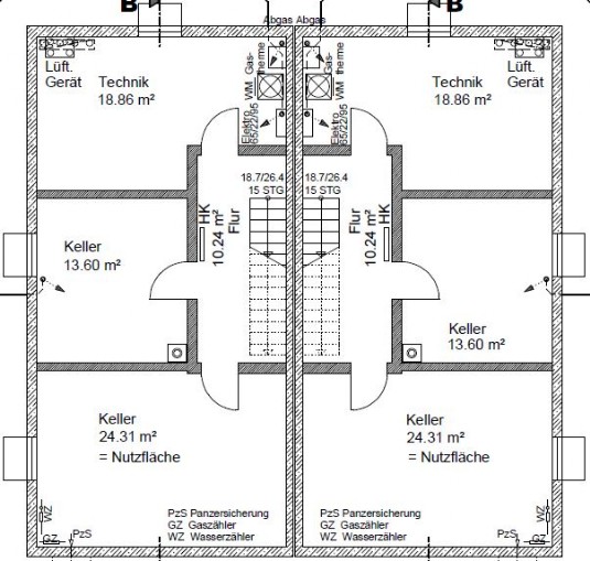
Grundriss des Kellers
Überblick Grundstück
Copyright by Roland Clas / 2021
Zurück zum Seiteninhalt